江戸城寛永度俯瞰

江戸城大手門登城


江戸城大手門前 下乗下乗橋の前の登城風景 玄関前の風景


将軍宣下


七代家継幼少の将軍宣下


江戸城天守 慶長 徳川家康 天守 江戸始図



江戸城 慶長年度 徳川家康江戸始図



元和度 徳川秀忠 天守



寛永度  寛永度  徳川家光 天守



徳川家継 新井白石の計画していた幻の 正徳度天守



江戸城 本丸大手門から中之門
A 大手門前 B 大手門渡櫓 C 二ノ丸 松倉櫓 三重櫓
D 三之門 下乗門 臺所三重櫓 天守 E 三之門渡櫓 F百人番所/百人二重櫓/寺沢二重櫓/寺沢門/中之門

江戸城 本丸御殿 表・中奥・大奥 各部屋
   
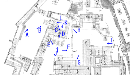
A 中の門 B 左 書院出櫓・書院二重櫓・高麗門 C 中雀渡櫓門
D 中雀門内御玄関    E 塀重御門御玄関  F 御玄関から塀重御門・大広間・中雀門
G 本丸塀重御門内と富士見櫓 H 本丸大広間と能舞台 数寄屋二重櫓 I 本丸大広間と能舞台
J 玄関から遠侍大番所中雀渡門 富士見櫓 K 中雀渡門 L 中雀渡門から冠木御門と番所
御玄関から虎の間入側まで  
1 御玄関    2 遠侍の間前入側   3 遠侍の間入側 
4 虎の間入側四の間溜方向   5 虎の間入側遠侍の間方向  6 虎の間入側  
7 遠侍の間   8 虎の間   9 虎の間と四の間溜入側  
 
10 虎の間と四の間溜入側奥     9-2 四の間溜と大広間杉戸  
大広間
11 大広間中門   12 大広間中門から四の間   13 大広間四の間
14 中門から大広間三の間  15 大広間三の間   16 大広間三の間入側
17 大広間二の間入側   18 大広間二の間 19 二の間から能舞台
20 大広間下段入側杉戸 21 大広間下段から二の間 22 大広間下段
23 大広間中段 24 大広間上段御張台 25 大広間上段
26 大広間下段から西大廊下 27 大広間御張台の間入り口 28 大広間御張台の間  
29 大広間法眼溜 30 大広間法眼溜西大廊下 31 大広間中段西大廊下入側
32 大広間中段西大廊下入側 33 大広間後の間の入口 34 大広間後の間
35 大広間後の間奥 36 大広間溜 37 大広間溜から柳の間方向
38 四の間入側 39  大広間入側から溜の間 40 大広間入側から松の廊下
柳の間  
A 柳の間 B 柳の間入側 C 柳の間入側
大廊下 松の廊下   41 松の廊下から大広間入側
42 松の廊下刃傷の場所 43 松の廊下桜の間方向 44 松の廊下から御三家部屋
45 松の廊御三家部屋 46 松の廊御三家部部屋雨落側 47 松の廊下から御家門部屋
48 松の廊御家門部屋 49 松の廊御家門部屋雨落側 50 松の廊下から御三家・御家門部屋
桜の間から白書院
51 白書院桜の間松の廊下方向 52 白書院桜の間白書院入側方向 53 白書院西大廊下
54 白書院中庭 55 白書院帝鑑の間入側 56 白書院帝鑑間
57 白書院帝鑑間 58 白書院濡縁 59 白書院
60 白書院下段から帝鑑の間 61 白書院下段 62 白書院上段
63 白書院連歌の間西入側 64 白書院入側菊の間 65 白書院連歌の間
66 白書院連歌の間 67 白書院御納戸構入り口 68 白書院西大廊下上段
69 白書院入側白書院上段間裏側 70 白書院波の間 71 白書院西入側
竹の廊下から黒書院
72 竹の廊下黒書院松溜方向 73 竹の廊下白書院波の間方向 74 黒書院松溜
75 黒書院中庭 76 黒書院入側松溜方向 77 黒書院下段の間
78 黒書院上段の間 79 黒書院囲炉裏の間 80 黒書院下段入側
81 黒書院上段裏の入側 82 黒書院囲炉の間入側 83 黒書院西湖の間
御成廊下
84 黒書院西湖の間入側    
85黒書院御成り廊下杉戸 86御成廊下 87御成廊下
88御成廊下 89御成廊下 90御成廊下
将軍が起居・政務を執った
中奥
 
91 御成廊下から御座の間杉戸 92 中奥御座の間下段入側 93 中奥御座の間三の間
94 中奥御座の間大溜 95 中奥御座の間大溜北入側 96中奥御座の間二の間
97 中奥御座の間下段 98 中奥御座の間上段 99 中奥御座の間下段西入側
100 中奥御座の間上段西入側 101 中奥御座の間上段北入側 102 中奥休息の間下段入側
103 中奥休息の間上段入側 104 中奥休息の間下段入側 105 中奥休息の間下段
106 中奥休息の間上段 107 中奥御小座敷入側 108 中奥御小座敷上段入側
109 中奥御小座敷下段 110 中奥御小座敷上段 111 中奥休息の間下段入側北
A 中奥萩の廊下休息の間方向 B 中奥萩の廊下御座の間方向 C 中奥萩の廊下御用所(トイレ)

中奥将軍の娯楽部屋「楓の間」



江戸城最高機密の「御用之間」
将軍が一人で書類に花押や印を捺し
いっさい人を避ける部屋

大奥上御鈴口

 
112 中奥御小座敷上段北入側 113 中奥御渡廊下 114 中奥御渡廊下楓の間
115 中奥楓の間次の間 116 中奥楓の間 117 中奥楓の間溜から中奥御渡廊下
118 中奥御用間入側将軍以外立ち入り禁止 119 中奥御用間 将軍以外立ち入り禁止 120 中奥御用間入側将軍以外立ち入り禁止
121 中奥楓の間溜 122 中奥医溜 123 中奥御籠部屋
大奥上御鈴口
  124 大奥上御鈴口中奥と大奥の境 125 御籠部屋正面と上御鈴口
大奥男子禁制の上御鈴廊下

御小座敷側室 の夜伽の御部屋
 
01 大奥上御鈴廊下 御鈴口前から 02 上御鈴廊下御小座敷入側杉戸 03 上御鈴廊下御 鈴口方向
04 御張出の間 御小座敷方向 05 御張出の間 御鈴口方向 06 上御鈴廊下御から御小座敷方向
07 御小座敷入側杉戸 08 御小座敷下段入側 09 御小座敷上段入側
010 大奥御鈴廊御小座敷上段裏入側押入れ 011 大奥御鈴廊御小座敷下段 012 大奥御鈴廊御小座敷上段
013 大奥御鈴廊御小座敷上段 014 大奥御小座敷北入側 015 大奥御小座 敷 蔦の間
   
016 大奥御小座敷 蔦の間    



将軍の目線での白書院節句・八朔の徳川尾張藩主の謁見
左・若年寄り 中央・御三家 右・老中




黒書院 役任命謁見 
左・若年寄り 中央・任命の旗本 右・老中




江戸城大広間表能舞台



大奥 御台所上段の下段の間




大奥 床入りの間

このHPに掲載している全ての画像、動画の著作権はサイトの管理者歴史CG作家中村宣夫が所有しています。無断掲載を禁ず   since1998